fr
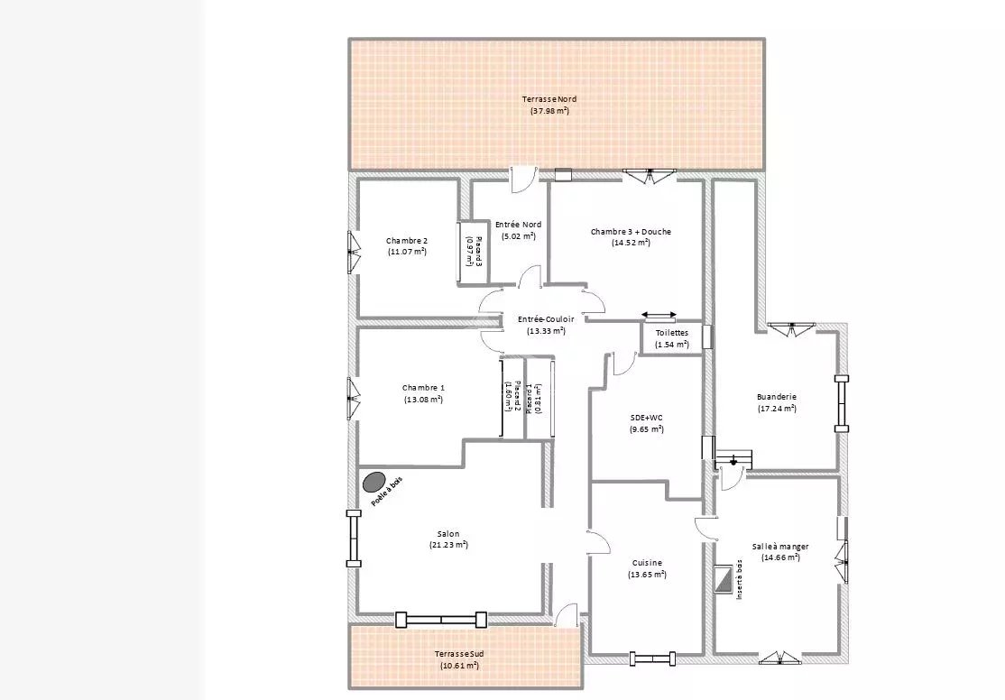
Maison de 117,75 m² habitables à rafraîchir, située sur la charmante commune d’Aléria et a quelques kilometres de Ghisonaccia, proche des commodités, des écoles et à seulement quelques minutes des plages et du centre.
Cette villa individuelle se compose de trois chambres, dont une avec douche et toilettes, d’un salon lumineux, d’une salle d’eau avec toilettes, d’une cuisine, d’une salle à manger conviviale et d’une buanderie fonctionnelle. Elle offre un fort potentiel qui pourra être pleinement exploité après quelques travaux de rafraîchissement (finitions, peintures, modernisation, etc.).
Le bien est équipé de la climatisation, d’un poêle à bois ainsi que d’une cheminée, garantissant un confort optimal en toute saison et une atmosphère chaleureuse.
Trois terrasses, dont une à l’étage, permettent de profiter d’agréables moments en famille ou entre amis, en toute tranquillité.
Le terrain d’environ 3 200 m² est joliment arboré de palmiers et d’arbres fruitiers. Il comprend également une dépendance à rénover, offrant la possibilité d’aménager un logement supplémentaire indépendant ou un espace de loisirs.
Pas d'informations disponibles

Ce site est protégé par reCAPTCHA et les règles de confidentialité et les conditions d'utilisation de Google s'appliquent.